一、广州市黄埔区龙湖街何棠下村旧村改造项目首开区监理
该项目位于广州市黄埔区,总建筑面积108.92万平方米,超高层装配式建筑,包含复建安置区及首期融资区。目前该项目是广州市已批复实施的体量最大的旧改项目之一,也是公司在广州市承接的首个监理项目,为今后公司拓展广州市监理和全咨市场奠定坚实基础。

二、肇庆智慧新能源产业园项目初步及施工图设计
该项目用地面积约100亩,总建筑面积174045平方米。该项目围绕新能源汽车及智慧储能装备产业,集聚先进制造、新材料、新能源、人工智能领域相关企业集聚,打造智慧新能源产业园。该项目中标是公司继完成粤海置业工程项目设计标准化2.0版咨询服务及南海粤海智能制造产业园项目之后,承接广东粤海控股集团的又一项目。这对于密切与集团关系、培育忠诚客户具有重大意义。

三、广西来宾恒荣农业科技有限公司预制菜产业园全过程工程咨询
项目总体规划约200亩,一期建筑面积约35000平方米。该项目以“品牌培育”为核心,以现代预制菜产业园为服务对象,计划打造以品牌农产品检测平台、展示平台、策划平台、营销推广平台,品牌农企孵化平台为一体的新型预制菜产业园。

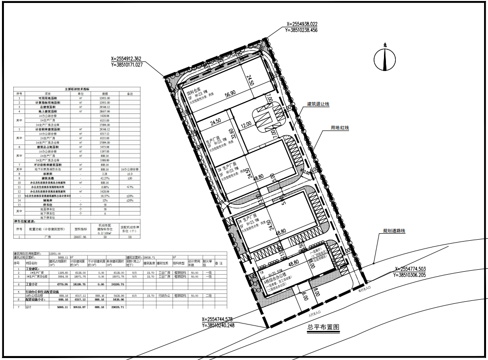
四、惠州祥宏实业有限公司新园区设计
该项目用地面积12951平方米,总建筑面积29546.12平方米。该项目定位为集研发创新、品牌提升、绿色生产、物流配送“四大平台”于一体的全链条化钓具“共享工厂”,提供标准化、智能化、生态化的设施,建成后将带动惠州市小微钓具企业共同发展。

五、泉州师范学院附属小学华大校区全过程工程咨询
本项目位于编号A-06地块北部,项目规划用地面积约27994平方米,总建筑面积约39192 平方米,容积率≤1.2 且≥0.7,建筑密度≤25%,绿地率≥35%,建筑限高≤30米;项目总投资约为21556万元。主要建设内容包括教学楼、办公综合楼、门卫、 大门、操场及绿化景观等附属配套设施。项目建成后,有助于打造教育发展“新高地”,给予当地学生优越的学习环境,满足当地学生的成长需要,全面提升泉州市的教育水平和办学质量。这是继宁德师范学院附属小学春风里校区建设项目全过程工程咨询服务中标后,公司再次中标学校类全过程工程咨询项目。本项目中标有助于进一步巩固公司在泉州全过程工程咨询业务的市场地位,为后续公司开拓泉州地区全咨业务奠定基础
一、广州市黄埔区龙湖街何棠下村旧村改造项目首开区监理
该项目位于广州市黄埔区,总建筑面积108.92万平方米,超高层装配式建筑,包含复建安置区及首期融资区。目前该项目是广州市已批复实施的体量最大的旧改项目之一,也是公司在广州市承接的首个监理项目,为今后公司拓展广州市监理和全咨市场奠定坚实基础。

二、肇庆智慧新能源产业园项目初步及施工图设计
该项目用地面积约100亩,总建筑面积174045平方米。该项目围绕新能源汽车及智慧储能装备产业,集聚先进制造、新材料、新能源、人工智能领域相关企业集聚,打造智慧新能源产业园。该项目中标是公司继完成粤海置业工程项目设计标准化2.0版咨询服务及南海粤海智能制造产业园项目之后,承接广东粤海控股集团的又一项目。这对于密切与集团关系、培育忠诚客户具有重大意义。

三、广西来宾恒荣农业科技有限公司预制菜产业园全过程工程咨询
项目总体规划约200亩,一期建筑面积约35000平方米。该项目以“品牌培育”为核心,以现代预制菜产业园为服务对象,计划打造以品牌农产品检测平台、展示平台、策划平台、营销推广平台,品牌农企孵化平台为一体的新型预制菜产业园。

四、惠州祥宏实业有限公司新园区设计
该项目用地面积12951平方米,总建筑面积29546.12平方米。该项目定位为集研发创新、品牌提升、绿色生产、物流配送“四大平台”于一体的全链条化钓具“共享工厂”,提供标准化、智能化、生态化的设施,建成后将带动惠州市小微钓具企业共同发展。

五、泉州师范学院附属小学华大校区全过程工程咨询
本项目位于编号A-06地块北部,项目规划用地面积约27994平方米,总建筑面积约39192 平方米,容积率≤1.2 且≥0.7,建筑密度≤25%,绿地率≥35%,建筑限高≤30米;项目总投资约为21556万元。主要建设内容包括教学楼、办公综合楼、门卫、 大门、操场及绿化景观等附属配套设施。项目建成后,有助于打造教育发展“新高地”,给予当地学生优越的学习环境,满足当地学生的成长需要,全面提升泉州市的教育水平和办学质量。这是继宁德师范学院附属小学春风里校区建设项目全过程工程咨询服务中标后,公司再次中标学校类全过程工程咨询项目。本项目中标有助于进一步巩固公司在泉州全过程工程咨询业务的市场地位,为后续公司开拓泉州地区全咨业务奠定基础